Skip To Content

502 Silver Birch Court

Shelby, NC 28152
  • $331,990
  • STATUS: Coming Soon
  • ON SITE: 4 Days
  • ON MARKET: 02/21/2026
  • ID#: 4342983
Coming Soon
UPDATED: 52 min ago
$331,990
  • 3
    BEDS
  • 0.1
    ACRES
  • 2
    BATHS
  • 1
    1/2 BATHS
  • 1,771
    SQFT
  • $187
    $/SQFT
Neighborhood:
Type:
Single-Family Home
Built:
2026
County:
Area:

School Information

Elementary School:
Middle School:
High School:
Canopy MLS logo Offered by Taylor Morrison of Carolinas Inc: 704-479-6655. Copyright 2026 Canopy MLS. All rights reserved.

Description

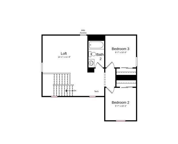
What's Special: Corner Lot | Loft | 1st Floor Primary Suite. Proposed New Construction - September Completion! Built by America's Most Trusted Home Builder. Welcome to the Linville at 502 Silver Birch Court in Fincastle Glen! This two story home offers a bright open design with plenty of natural light and a kitchen that flows into the casual dining area and great room. Just off the great room, the first floor primary suite features an ensuite bath with a dual sink vanity, a walk in shower and a walk in closet. The main level also includes a powder room and a laundry room for added convenience. Upstairs, a cozy loft sits between two secondary bedrooms with a shared full bath, creating an ideal space for relaxing or working. Life at Fincastle Glen in Shelby brings a friendly community atmosphere close to Shelby Middle School and minutes from Uptown Shelby’s live music, local shops and cafés, along with easy access to I 85, I 74, Uptown Charlotte, Charlotte Airport and Asheville. This is a proposed home, giving buyers the opportunity to personalize their selections. MLS#4342983

Monthly Payment Calculator



MLS Grid logo Based on information submitted to the MLS GRID as of 2026-02-08T14:33:25.723 UTC. All data is obtained from various sources and may not have been verified by broker or MLS GRID. Supplied Open House Information is subject to change without notice. All information should be independently reviewed and verified for accuracy. Properties may or may not be listed by the office/agent presenting the information.The data relating to real estate on this Web site derive in part from the Canopy MLS IDX program. Brokers make an effort to deliver accurate information, but buyers should independently verify any information on which they will rely in a transaction. All properties are subject to prior sale, change or withdrawal. Neither Dreamline Realty, LLC nor any listing broker shall be responsible for any typographical errors, misinformation, or misprints, and they shall be held totally harmless from any damages arising from reliance upon this data. This data is provided exclusively for consumers' personal, non-commercial use and may not be used for any purpose other than to identify prospective properties they may be interested in purchasing. © 2026 Canopy MLS.

“Listings courtesy of Canopy MLS as distributed by MLS GRID

Some IDX listings have been excluded from this website.

Digital Millennium Copyright Act
www.dreamlinerealty.com/homes/172689510
Print Image

502 Silver Birch Court Shelby, NC 28152

  • Price: $331,990
  • Status: Coming Soon
  • On Site: 4 Days
  • Updated: 52 min ago
  • ID#: 4342983
3
Beds
2
Baths
1
½ Baths
0.1
Acres
1,771
SQFT
$187
$/SQFT
2026
Built
Neighborhood:
Fincastle Glen
County:
Cleveland
Area:
Shelby
Elementary School:
James Love
Middle School:
Shelby
High School:
Shelby
Property Description
What's Special: Corner Lot | Loft | 1st Floor Primary Suite. Proposed New Construction - September Completion! Built by America's Most Trusted Home Builder. Welcome to the Linville at 502 Silver Birch Court in Fincastle Glen! This two story home offers a bright open design with plenty of natural light and a kitchen that flows into the casual dining area and great room. Just off the great room, the first floor primary suite features an ensuite bath with a dual sink vanity, a walk in shower and a walk in closet. The main level also includes a powder room and a laundry room for added convenience. Upstairs, a cozy loft sits between two secondary bedrooms with a shared full bath, creating an ideal space for relaxing or working. Life at Fincastle Glen in Shelby brings a friendly community atmosphere close to Shelby Middle School and minutes from Uptown Shelby’s live music, local shops and cafés, along with easy access to I 85, I 74, Uptown Charlotte, Charlotte Airport and Asheville. This is a proposed home, giving buyers the opportunity to personalize their selections. MLS#4342983
Exterior Features

Carport YN No Construction Materials Vinyl Construction Type Site Built Foundation Details Slab Garage YN Yes Levels Two Main Level Garage YN Yes Parking Features DrivewayAttached GarageGarage Door OpenerGarage Faces Front Patio And Porch Features Front Porch Road Responsibility Dedicated to Public Use Pending Acceptance Road Surface Type ConcretePaved Roof Architectural Shingle

Interior Features

Above Grade Finished Area 1771 Appliances DishwasherDisposalElectric RangeMicrowaveOvenPlumbed For Ice Maker Basement YN No Below Grade Finished Area 0 Cooling Central AirElectricHeat PumpZoned Fireplace YN No Flooring CarpetLaminateTileVinyl Garage Spaces 2 Heating ElectricHeat PumpZoned Interior Features Entrance FoyerKitchen IslandOpen FloorplanPantryWalk-In Closet(s)Walk-In Pantry Laundry Features Electric Dryer HookupLaundry RoomMain LevelWasher Hookup Lower Square Feet 0 Main Square Feet 1173 Rooms Main (Kitchen) Main (Dining Area) Main (Great Room) Main (Primary Bedroom) Main (Bathroom-Full) Main (Laundry) Main (Bathroom-Half) Upper (Bedroom(s)) Upper (Bedroom(s)) Upper (Bathroom-Full) Upper (Loft) Sq Ft Unheated Main 0 Sq Ft Unheated Total 0 Sq Ft Unheated Upper 0 Sq Ft Upper 598 Third Square Feet 0

Property Features

Additional Parcels YN False Association Annual Expense 1050.00 Association Fee 262.5 Association Fee Frequency Quarterly Association Name Community Association MGMT Services Association YN Yes Assumable YN No Auction YN No Builder Name Taylor Morrison CCRSubject To Yes City Taxes Paid To Shelby Community Features Sidewalks Construction Status Proposed Hoa Subject To Required HOASubject To Dues Mandatory Listing Terms CashConventionalFHAVA Loan Model Linville New Construction YN Yes Property Sub Type Single Family Residence Proposed Completion Date 2026-09-30 Restrictions Architectural ReviewDeed Security Features Carbon Monoxide Detector(s)Smoke Detector(s) Senior Community YN No Sewer Public Sewer Special Listing Conditions None Utilities Cable AvailableElectricity ConnectedSatellite Internet AvailableUnderground Power LinesUnderground UtilitiesWired Internet Available Water Source City



MLS Grid logo Based on information submitted to the MLS GRID as of 2026-02-08T14:33:25.723 UTC. All data is obtained from various sources and may not have been verified by broker or MLS GRID. Supplied Open House Information is subject to change without notice. All information should be independently reviewed and verified for accuracy. Properties may or may not be listed by the office/agent presenting the information.The data relating to real estate on this Web site derive in part from the Canopy MLS IDX program. Brokers make an effort to deliver accurate information, but buyers should independently verify any information on which they will rely in a transaction. All properties are subject to prior sale, change or withdrawal. Neither Dreamline Realty, LLC nor any listing broker shall be responsible for any typographical errors, misinformation, or misprints, and they shall be held totally harmless from any damages arising from reliance upon this data. This data is provided exclusively for consumers' personal, non-commercial use and may not be used for any purpose other than to identify prospective properties they may be interested in purchasing. © 2026 Canopy MLS.

“Listings courtesy of Canopy MLS as distributed by MLS GRID

Some IDX listings have been excluded from this website.

Digital Millennium Copyright Act
 
https://bt-photos.global.ssl.fastly.net/cmls/orig_boomver_1_4342983-1.jpg https://bt-photos.global.ssl.fastly.net/cmls/orig_boomver_1_4342983-1.jpg https://bt-photos.global.ssl.fastly.net/cmls/orig_boomver_1_4342983-1.jpg
Logo
Dreamline Realty, LLC
4351 Main Street Suite 203
Harrisburg NC, 28075
Canopy MLS logo Offered by Taylor Morrison of Carolinas Inc: 704-479-6655. Copyright 2026 Canopy MLS. All rights reserved.